Privatverkauf ohne Makler­provision

Einfamilienhaus mit Substanz und Entwicklungs­potenzial

6 Zimmer, Küche, Bad, Balkon, Garten, 2 Garagen und Verkauf gegen Höchstgebot.

Bad Dürkheim-Grethen Termin folgt
Immobilie in Grethen
01 / 19

Exposé

Objektdaten & Beschreibung

HaustypEinfamilienhaus in Grenzbebauung
Baujahr1932
Grundstück270 m²
Gebäudenutzflächeca. 139,5 m²
Etagen3
Zimmer6
Küche1
Bad1
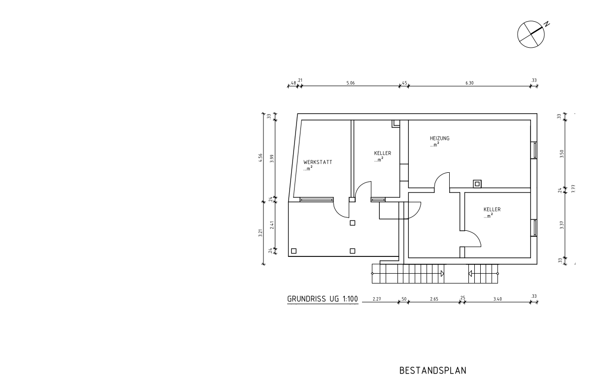
KellerVollunterkellert mit 5 Nutzräumen
BalkonÜberdacht
AusstattungGäste-WC, Einbauküche, Garten, Dachboden
Stellplätze2 Garagen
VerfügbarAb sofort

Zum Verkauf steht ein Einfamilienhaus in Grenzbebauung in ruhiger Wohnlage im Bad Dürkheimer Ortsteil Grethen.

Das Haus bietet eine solide Grundsubstanz, eine großzügige Raumaufteilung und vielfältige Möglichkeiten zur individuellen Gestaltung. Die Immobilie wurde vollständig geräumt und ermöglicht einen direkten Start für Modernisierungs- und Ausbauvorhaben.

Der vorhandene Grundriss eignet sich sowohl für die Nutzung als klassisches Einfamilienhaus als auch perspektivisch für eine Aufteilung in zwei Wohneinheiten.

Das Gebäude entspricht in wesentlichen Bereichen nicht mehr dem heutigen Ausstattungs- und Energiestandard. Insbesondere Dach, Haustechnik und Innenausbau sollten im Zuge einer Modernisierung erneuert werden. Das Badezimmer ist stark veraltet. Im Dachbereich sind vereinzelt Feuchtigkeitsspuren vorhanden, unter anderem im Bereich des Kamins.

Gleichzeitig bietet genau dies die Möglichkeit, das Haus nach eigenen Vorstellungen zu gestalten und weiterzuentwickeln - vielleicht genau das richtige Projekt für Käufer mit Ideen und Vision.

Grundrisse

Gebäudeebenen im direkten Vergleich

Die Grundrisse liegen deckungsgleich übereinander. Über die Ebenenwahl lässt sich direkt zwischen Untergeschoss, Erdgeschoss und Obergeschoss umschalten.

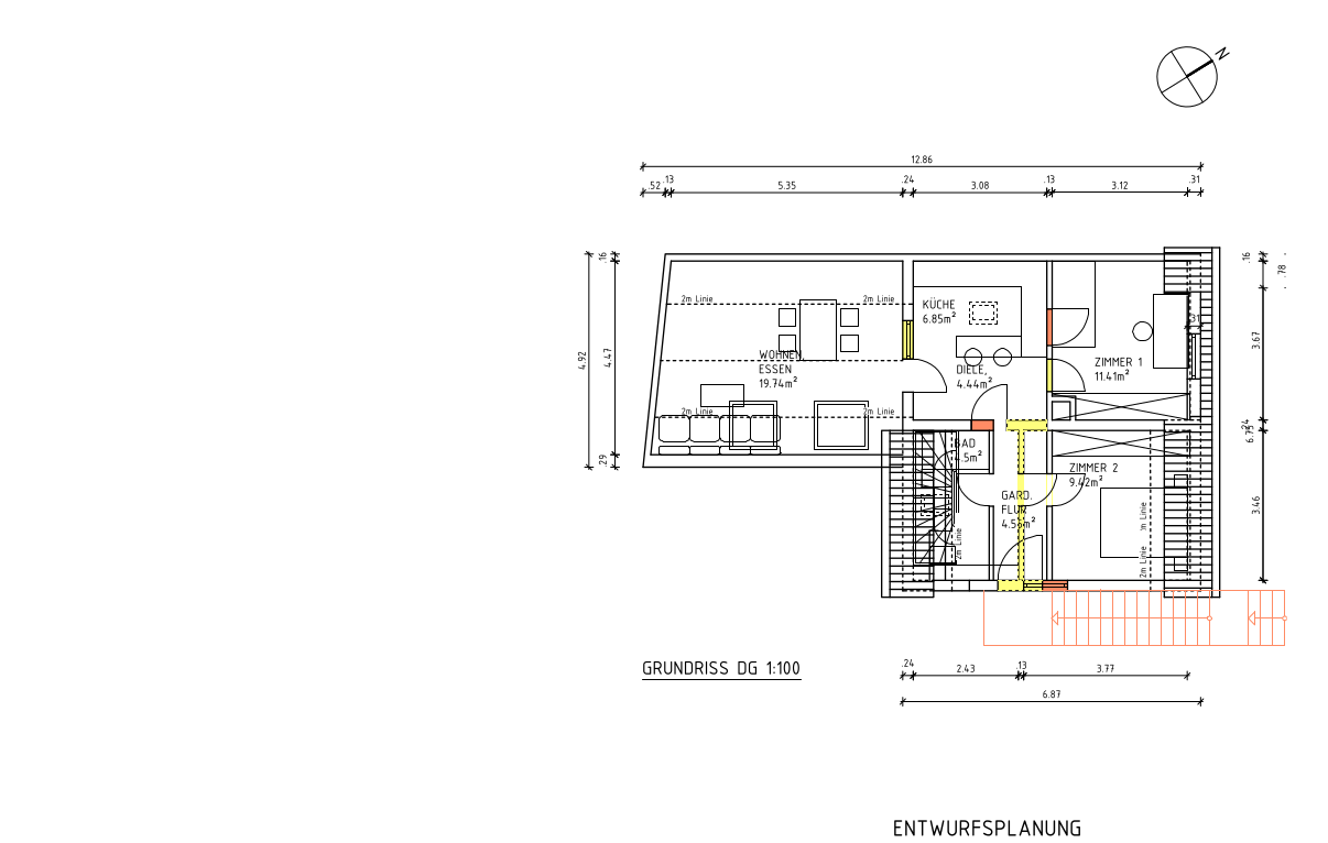
Grundriss Untergeschoss Grundriss Erdgeschoss Grundriss Obergeschoss
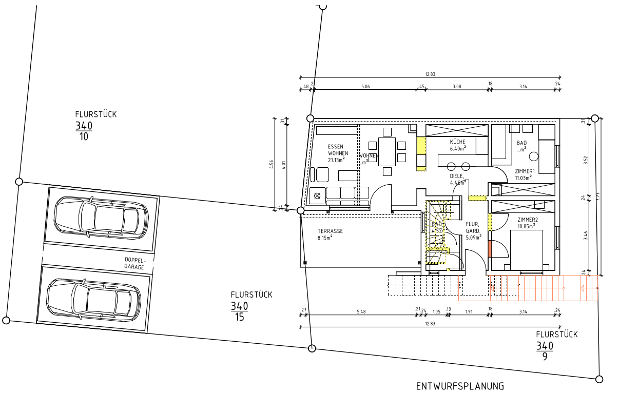
Entwicklungspotenzial

Die farbig markierten Anpassungen in Bestandsplan und Entwurfsplanung beziehen sich auf eine positiv beschiedene Bauvoranfrage. Damit wäre eine bauliche Weiterentwicklung des Einfamilienhauses grundsätzlich möglich, auch mit geänderter Raumaufteilung und einer Trennung in zwei Wohneinheiten mit Außentreppe.

Seitenansichten

Hausansicht drehen

Mit dem Regler lässt sich die Ansicht zwischen Nord, Ost und Süd auf einer kleinen 3D-Bühne drehen. So bleibt die Orientierung klarer als bei einer bloßen Überblendung.

Seitenansicht Nord
Seitenansicht Ost
Seitenansicht Süd

Unterlagen

Energieausweis

Der Energieausweis ist als Teaser sichtbar. Die vollständige Ansicht wird nach Eingabe eines gültigen Codes freigeschaltet.

Ablauf

So funktioniert die Teilnahme

1

Besichtigungstermin anfragen und Sicherheitsfrage beantworten.

2

Einmalcode per E-Mail erhalten und Registrierung bestätigen.

3

Persönlichen Zugangscode bekommen und damit Adresse, Gebotsformular und Höchstgebot freischalten.

Besichtigung

Zur Teilnahme registrieren

Verifizierung

Anmeldung bestätigen

Adresse

Vollständige Anschrift freischalten

Höchstgebot

Aktuell hinterlegten Wert einsehen

Bitte zuerst oben Ihren persönlichen Code eingeben.

Das manuell gepflegte Höchstgebot wird nach Freischaltung hier angezeigt.

Gebot

Gebot abgeben oder erhöhen

Bitte zuerst oben Ihren persönlichen Code eingeben, um den Gebotsbereich freizuschalten.